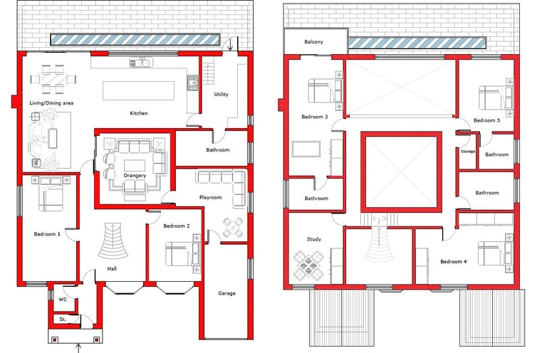
Two storey rear extension and refurbishment of external elevation with additional timber cladding and white render.










Honey End Lane, Reading
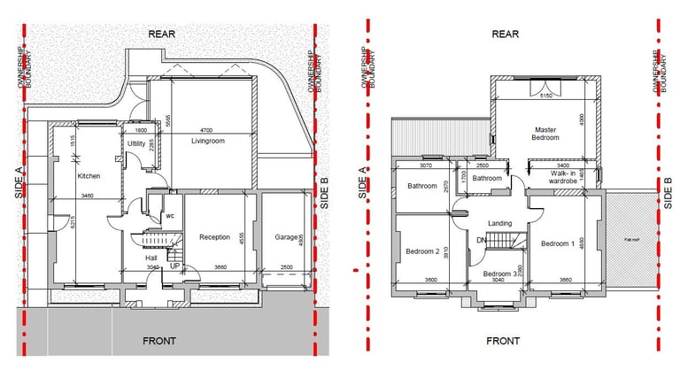
First floor extension and raising of the roof to provide additional habitable space.




The Rise, Finchampstead
Part two part single storey rear extensions and alterations to the internal layout of the dwelling.




