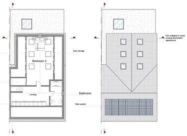
replacement two storey dwelling, new modern design of the house including surrounding soft landscaping, rearrangement of the access and boundary treatment.












Pink Lane, Langley, Slough
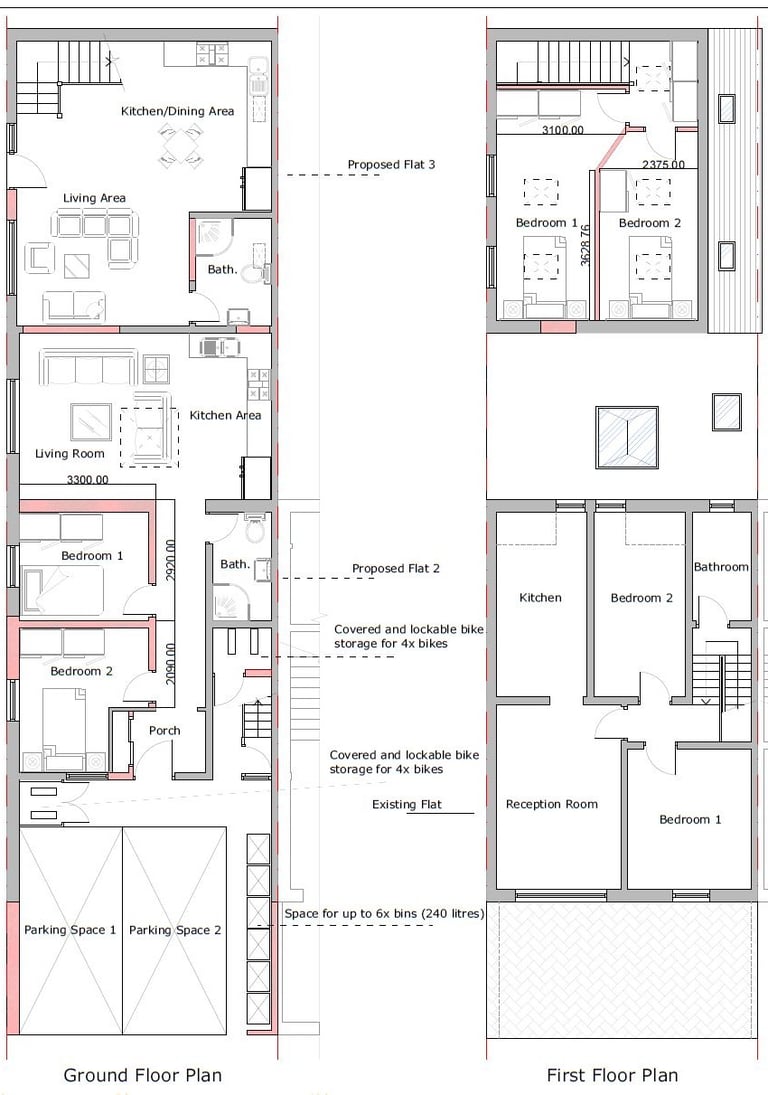
Part two part single storey rear extension, alterations to boundary treatment and conversion of the existing dwelling into 2 flats.








Mount Pleasant, Reading
The erection of two storey side extension to form new end-of-terrace dwelling with amended access and front garden.






Holmes Road, Reading
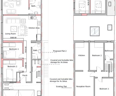
Part two part single storey rear extension with internal alterations and conversion of the existing dwelling to 3 flats.








Mason Street, Reading
Conversion of a two storey garden outbuilding to a single detached dwelling with private garden and amended access.






Elm Grove, Chieveley
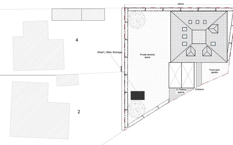
Proposed erection of a two storey detached dwelling in a side garden of the host dwelling with new access, soft landscaping.
The development is for a two storey detached dwelling, with an in keeping appearance and with cohesive type and colour of used materials, consistent with the host property and neighbouring houses along Headley Road in Woodley. 1 Right Plan planning and design consultancy paid extra attention to reflect and mirror design features and architectural details of the dwellings to the left side from the application building. In addition, this dwelling respected the building line established by the adjacent houses with an in keeping appearance, it appeared as an uncontentious and well-balanced transition from residential character towards more industrial/commercial area within this neighbourhood.






Headley Road, Woodley
Conversion of industrial/Office unit to 3x flats with changes to the fenestration and internal alterations.
The development included a conversion of the existing two storey mixed use building to 3x two bedroom flats of improved design and sustainability. The application property is characterized with a location within Reading settlement boundaries, which is strongly unified in terms of the design, however overly dominated with Houses of Multiple Occupation. 1 Right Plan planning and design consultancy delivered a well-fitted scheme, successfully addressing the local context and standing in accordance with the restrictive policies at Reading BC.






Foxhill Road, Reading
Erection of a new Detached chalet bungalow in the back gardens of two host properties, including soft landscaping, fences and parking arrangement.
The development included a 1.5 storey, detached chalet bungalow designed by 1 Right Plan, erected within the rear gardens space of the donor properties. This residential scheme has been compliant with regards to existing streetscene, massing and density of the surrounding properties. 1 Right Plan planning and design consultancy delivered a sustainable scheme, minimising any impact upon the adjacent properties.






